- 395,00 €
Kaltmiete - 3
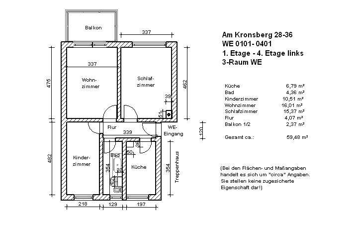
Zimmer - 59,48 m²
Wohnfläche
Renovierte 3-Raum Wohnung mit Balkon in bester Lage.
Am Kronsberg 34 · 29410 Salzwedel
- Balkon
- Bad mit Fenster
- Lage im Haus Etagenwohnung
- Etage 3.OG
- Objektzustandvollständig saniert
- Heizung Zentralheizung
- Baujahr: 1972
- Bezug ab 01.05.2026
- Wohnungs-Nr. 101.3028.3441
Mietkonditionen
- Kaltmiete 395,00 €
- Nebenkosten 200,00 €
- Heizkosten enthalten
- Warmmiete 595,00 €
- Kaution 790,00 €
Energieausweis
- Verbrauchsausweis
- Kennwert Endenergie 97,00 kWh(m²*a)
- Effizienzklasse: C
- Energieträger Heizung: Fernwärme
- Baujahr: 1972/2014
Ausstattung
- helle, große Räume
- neue Elektrik
- neuer Bodenbelag
- neue Innentüren
- modern gefliestes Duschbad mit Fenster
- sep. Keller
Objektbeschreibung
Das 4-geschossige Wohngebäude liegt in einem wunderschön gelegenen Wohngebiet. Nicht nur die ruhige und grüne Umgebung sorgen für ein angenehmes Wohngefühl, sondern auch die wärmegedämmte Fassade, die neuen Isolierglasfenster und die angenehme, wohlausgesuchte Mieterschaft.
Lage
Das Objekt liegt nahe dem Stadtzentrum. Ein Kindergarten, eine Grundschule und vieles mehr wie das Freibad, der Park des Friedens, das Krankenhaus erreichen Sie von hier aus fußläufig. Kurze Wege für alle privaten und geschäftlichen Wege sind somit garantiert und lassen Ihnen somit mehr Zeit für die schönen Dinge des Lebens. Die Zeit können Sie dann zum Beispiel bei schönen und ruhigen Spaziergängen in dem nahe liegenden Park verbringen.





